Rodinný dom na predaj v lokalite Nesvady v okrese Komárno
NOVINKA ! Nízkoenergetická novostavba - rodinný dom vo výstavbe na kľúč !!!
Túžiš po krásnej, modernej novostavbe s nízkymi réžiami ?
Tak si pozri našu ponuku !
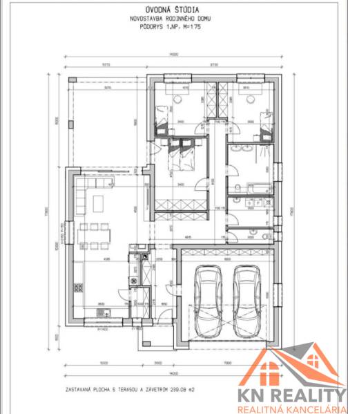
Fotky sú z predošlej stavby , dom sa bude stavať podľa priloženého pôdorysu !
Snami sa sny stávajú skutočnosťou, sprevádzame Vás až do posledného kroku, zabezpečujeme plnú bezpečnosť, priateľský zodpovedný prístup, plynulý pochod a kvalitu !
Máš možnosť si zarezervovať moderný rodinný dom a tak máš možnosť si vybrať vnútorné dvere, podlahu a kúpeľňu podľa vlastného vkusu !!!
Henrieta Nemšovská - KN Reality Vám ponúka na predaj 4 izbovú novostavbu v obci Bajč. Momentálny stav - čoskoro vo výstavbe. Termín dokončenia jeseň 2026. Vybavenie domu štandard - na kľúč !!!
Rodinný dom je postavený s vysokokvalitných materiálov. Použitý materiál : tehla, strešná kritina je škridla MEDITERRAN ECO, okná plastové trojsklo.
Rozloha pozemku je 687 m2. Pozemok je pekný slnečný , je z troch strán ohraničený s betonovým plotom (vchodová a garážová brána podľa vkusu majiteľa na vlastné náklady). Exteriér domu skrášľuje zámková dlažba. Zastavaná plocha : 238 m2, úžitková plocha : 205 m2 + terasa 33 m2. Rodinný dom disponuje s dvojgarážou. Nachádza sa v novej štvrti obce.
Inžinierske siete : elektrina, verejný vodovod, kanalizácia + vodomerná šachta ( plyn nie je).
Kúrenie je podlahové ( tepelné čerpadlo) alebo elektrické , predpríprava krbu, žalúzie na okná. Dom aj strop je zateplený.
Dispozičné riešenie :
- predsieň
- kuchyňa s obývačkou, vstup na terasu
- spálňa
- 2 x detská izba
- kúpeľňa s vaňou, sprchovacím kútom, toaleta
- samostatná toaleta s umývadlom
- technická miestnosť
- špajza
- garáž pre dve autá
Cena nehnuteľnosti : 225 000 eur a zahrňa všetky právne a katastrálne poplatky, bezplatné poradenstvo, hypotekárny úver.
Občianska vybavenosť obce : Mš, Zš, pošta, knižnica, ihrisko, obchody potravinárskeho a nepotravinárskeho pôvodu, pohostinstvo, kanalizácia, vlaková zastávka.
Obec Bajč sa nachádza 22 km od Komárna , 8 km od Nových Zámkov a 6 km od Hurbanova. Rodinný dom sa nachádza v príjemnej novovybudovanej štvrti s kľudnou, tichou a bezpečnou uličkou kde sa nemusíte báť o bezpečie svojich detičiek. V blízkosti je aj detské ihrisko !
Ak Vás ponuka zaujala rada Vám poskytnem dalšie informácie a pri vážnom záujme odporúčam konzultáciu v prítomnosti stavbára, zavolajte mi na tel.č. 0918 107 570 a dohodneme si stretnutie !
Teším sa na Vás !!!
Podrobné informácie
Poloha nehnuteľnosti na mape
Nesvady, Komárno, Slovensko
